Galerie de conception : notre passion en images
Découvrez ici les projets qui nous animent le plus : des plans de maisons en 2D et 3D, où chaque détail compte. Laissez-vous inspirer par la beauté et la précision de nos créations, reflets de notre engagement pour l'excellence.

L'art du détail : plans de maisons 3D
Chez ADCE.Immo/ADC.Construction, la conception de plans de maisons en 3D est notre cœur de métier. Chaque projet est une toile où nous dessinons des espaces de vie contemporains et fonctionnels, pensés pour vous. Nous mettons en lumière l'intégration harmonieuse des volumes, la circulation optimale et l'esthétique soignée de chaque réalisation.

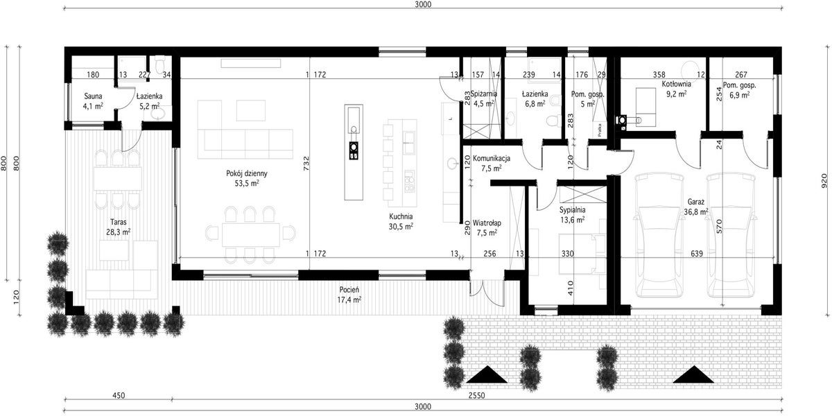
Précision et fonctionnalité : plans 2D
Nos plans 2D sont le fondement de toute construction solide. Ils illustrent la précision et la rigueur avec lesquelles nous abordons chaque projet. Ils témoignent de notre expertise en matière de conception, où chaque ligne a son importance pour garantir la viabilité et la beauté de votre future habitation.
Le travail bien fait : notre signature
Chaque réalisation d'ADCE.Immo/ADC.Construction est conçue pour laisser une impression durable : celle d'un travail et d'un détail bien faits, aboutissant à une conception contemporaine magnifique. C'est le message principal que nous souhaitons que vous reteniez en parcourant notre galerie.